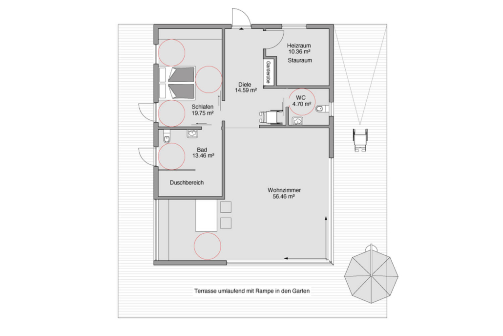
Mit diesem Bungalow wurde „stufenloser Wohnkomfort“ in seiner schönsten Form verwirklicht. Wer auch in Richtung „Vorsorgehaus“ denkt, dem bietet dieser Bungalow alle Wohn- und Lebensräume auf einer Ebene. Sehr ansprechend ist das Bad mit der Nischenlösung der barrierefreien Dusche, die so dem Vorsorgedenken Tribut zollt. Große Fenster sorgen für helle, luftige Räume und bringen Ihnen den Sonnenschein und die Natur ins Haus.
Unser neues Zuhause sollte zukunftsorientiert und altersgerecht sein.
Bauherren aus Bad Esenhausen


Anzahl Zimmer: 3
Hausgrundfläche: 135,98 m2
Nettogrundfläche (DIN 277): 119,28 m2
Erdgeschoss: 119,28 m2
Dachform: Satteldach
Dachneigung: 27°
Das Besondere an jedem OTT HAUS ist ein angenehmes Raumklima, weil die Wände Feuchtigkeit aufnehmen und wieder abgeben als würden sie atmen. Jedes Haus ist energiesparend gebaut, auf Wunsch kann auch eine höhere Energie-Effizienzklasse gewählt werden, die durch Fördermittel gedeckt wird.
Hier finden Sie 8 gesunde Gründe, mit uns zu bauen
Sie möchten mehr erfahren?
Kontaktieren Sie uns oder kommen Sie vorbei.

Rufen Sie uns an oder schreiben Sie uns eine Email.

Stöbern Sie in aller Ruhe durch ca. 100 Seiten gefüllt mit Inspirationen und Informationen rund um das Thema Bauen mit OTT HAUS

Besuchen Sie uns in unserer Erlebniswelt oder schauen Sie sich unsere Produktionshalle an.
OTT HAUS
Untere Lußstr. 27
88271 Wilhelmsdorf

Als Vorarbeiter/in leitest du dein eigenes Team auf der Baustelle und sorgst dafür, dass die Planung in die Realität umgesetzt wird.

Weihnachten rückt näher – und bei uns duftet es schon nach Tannengrün und Waffeln. Am 06. Dezember von 10 bis 15 Uhr laden wir Sie herzlich zu unserem traditionellen Christbaumtag ein.