Die große Küche zeugt von der Leidenschaft der Bauherren fürs Kochen. Kommen Gäste, kann hier der Außenbereich zum „Gästezimmer“ werden. Die Architektur ermöglicht einen freien Blick in die Natur von allen Seiten. Durch tief angebrachte Lichtbänder wurde auch für kleinere Kinder der Blick in den Garten möglich gemacht. Die Kinderzimmer sind dadurch extrem luftig und durscheinend. Die Vielzahl der Lichtbänder, die durchlaufen, erschaffen eine Transparenz, die man sonst nicht hätte.
Der vereinbarte Preis hat perfekt gepasst.
Bauherren aus Kißlegg


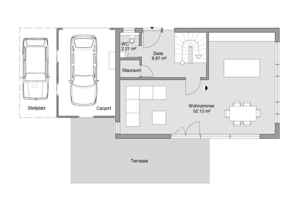
Anzahl Zimmer: 5
Hausgrundfläche: 117,40 m2
Nettogrundfläche (DIN 277): 137,00 m2
Erdgeschoss: 68,50 m2
Dachgeschoss: 65,80 m2
Kniestock: 180 cm
Dachform: Satteldach
Dachneigung: 25°
Das Besondere an jedem OTT HAUS ist ein angenehmes Raumklima, weil die Wände Feuchtigkeit aufnehmen und wieder abgeben als würden sie atmen. Jedes Haus ist energiesparend gebaut, auf Wunsch kann auch eine höhere Energie-Effizienzklasse gewählt werden, die durch Fördermittel gedeckt wird.
Hier finden Sie 8 gesunde Gründe, mit uns zu bauen
Sie möchten mehr erfahren?
Kontaktieren Sie uns oder kommen Sie vorbei.

Rufen Sie uns an oder schreiben Sie uns eine Email.

Stöbern Sie in aller Ruhe durch ca. 100 Seiten gefüllt mit Inspirationen und Informationen rund um das Thema Bauen mit OTT HAUS

Besuchen Sie uns in unserer Erlebniswelt oder schauen Sie sich unsere Produktionshalle an.
OTT HAUS
Untere Lußstr. 27
88271 Wilhelmsdorf

Als Vorarbeiter/in leitest du dein eigenes Team auf der Baustelle und sorgst dafür, dass die Planung in die Realität umgesetzt wird.

Weihnachten rückt näher – und bei uns duftet es schon nach Tannengrün und Waffeln. Am 06. Dezember von 10 bis 15 Uhr laden wir Sie herzlich zu unserem traditionellen Christbaumtag ein.