Leben ohne Grenzen – diese Maxime wurde mit den Bauherren mit diesem Haus verwirklicht. Im ganzen Haus profitieren Sie von den durchdachten Fensterfronten rundum und haben so den Vorteil natürlicher Beleuchtung den ganzen Tag! So wird selbst das zentral im Haus gelegene Treppenhaus zum beliebten Treffpunkt für einen Plausch zwischendurch, zum Rückzugsort für ein kreatives Päuschen oder eine schnelle Tasse Kaffee mit blick in die Weite! Freiheit leben und Privatsphäre genießen – hier ist alles drin!
Spannend, hell, freundlich – so sollte unser Haus werden.
Bauherren aus Sauldorf


Anzahl Zimmer: 5
Hausgrundfläche: 189,43 m2
Nettogrundfläche (DIN 277): 159,09 m2
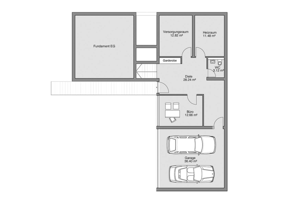
Erdgeschoss: 80,05 m2
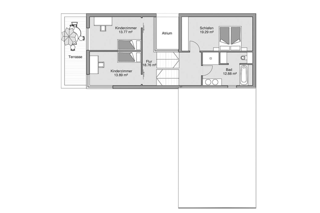
Dachgeschoss: 78,59 m2
Kniestock: 100 cm / 200 cm
Dachform: Walmdach
Dachneigung: 25° / 28°
Das Besondere an jedem OTT HAUS ist ein angenehmes Raumklima, weil die Wände Feuchtigkeit aufnehmen und wieder abgeben als würden sie atmen. Jedes Haus ist energiesparend gebaut, auf Wunsch kann auch eine höhere Energie-Effizienzklasse gewählt werden, die durch Fördermittel gedeckt wird.
Hier finden Sie 8 gesunde Gründe, mit uns zu bauen
Sie möchten mehr erfahren?
Kontaktieren Sie uns oder kommen Sie vorbei.

Rufen Sie uns an oder schreiben Sie uns eine Email.

Stöbern Sie in aller Ruhe durch ca. 100 Seiten gefüllt mit Inspirationen und Informationen rund um das Thema Bauen mit OTT HAUS

Besuchen Sie uns in unserer Erlebniswelt oder schauen Sie sich unsere Produktionshalle an.
OTT HAUS
Untere Lußstr. 27
88271 Wilhelmsdorf

Als Vorarbeiter/in leitest du dein eigenes Team auf der Baustelle und sorgst dafür, dass die Planung in die Realität umgesetzt wird.

Weihnachten rückt näher – und bei uns duftet es schon nach Tannengrün und Waffeln. Am 06. Dezember von 10 bis 15 Uhr laden wir Sie herzlich zu unserem traditionellen Christbaumtag ein.